Современный подход к проектированию систем вентиляции и кондиционирования
Компания ЭирМакс предлагает полный спектр услуг по проектированию систем вентиляции и кондиционирования, отличающийся современным подходом и использованием новейших технологий. Мы создаем комфортный микроклимат в помещениях различного назначения: от уютных квартир и загородных домов до крупных коммерческих и промышленных объектов, включая магазины, салоны красоты и промышленные предприятия.
Мы знаем, как обеспечить высочайшие требования даже самых искушенных заказчиков.
Проектирование – основа надежной и эффективной системы:
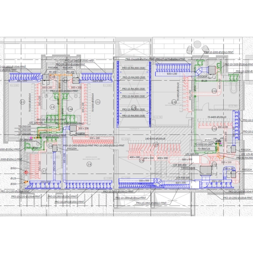
Наши молодые и прогрессивные инженеры используют передовые программные комплексы Revit и MagiCAD для создания высокоточных 3D-моделей систем вентиляции и кондиционирования. Это позволяет нам:
- Визуализировать проект: Вы сможете увидеть будущую систему до начала монтажных работ, что позволит внести коррективы и утвердить оптимальный вариант.
- Оптимизировать систему: 3D-моделирование помогает нам оптимизировать расположение оборудования, минимизировать потери энергии и обеспечить максимальную эффективность системы.
- Прогнозировать затраты: Точное моделирование позволяет нам составить детальную смету и избежать непредвиденных расходов на этапе реализации проекта.
Ваш проект — это:
- Полный комплект чертежей: Детальные чертежи, отражающие все аспекты проекта, включая расположение оборудования, трассы воздуховодов и коммуникаций.
- Схема автоматики: Если требуется, мы разработаем схему автоматизации системы, обеспечивающую удобное управление и контроль.
- Узлы и детали: Развернутые чертежи узлов и деталей системы, обеспечивающие бесперебойную работу и простоту обслуживания.
- Подробная спецификация: Полный перечень оборудования и материалов с указанием артикулов, что позволит вам объективно оценить стоимость проекта и избежать перерасхода бюджета.
Мы гарантируем:
- Высокое качество проектирования и монтажа: Благодаря применению инновационных технологий и высокому профессионализму наших специалистов.
- Оптимальное соотношение цены и качества: Мы предлагаем лучшие решения с учетом вашего бюджета.
- Долговечность и надежность системы: Правильное проектирование и профессиональный монтаж являются залогом долгой и бесперебойной работы вашей системы климат-контроля.
Создайте комфортный и энергоэффективный микроклимат с ЭирМакс! Свяжитесь с нами для получения консультации и заказа проекта.
